
上海觉木装饰设计工程有限公司
一个以匠心、用匠人、造匠品的室内设计平台
艺术·人文·自然
Art/Humanity/Nature
尊重与传承
策略+设计
”

项目概述
Project overview
1
上海ZRXCL科技有限公司位于上海松江区小昆山开放区。
项目为A、B两栋厂房办公室,两栋楼的结构格局类似,空间的功能划分为车间厂房,办公空间及实验室空间。


(厂房航拍图)
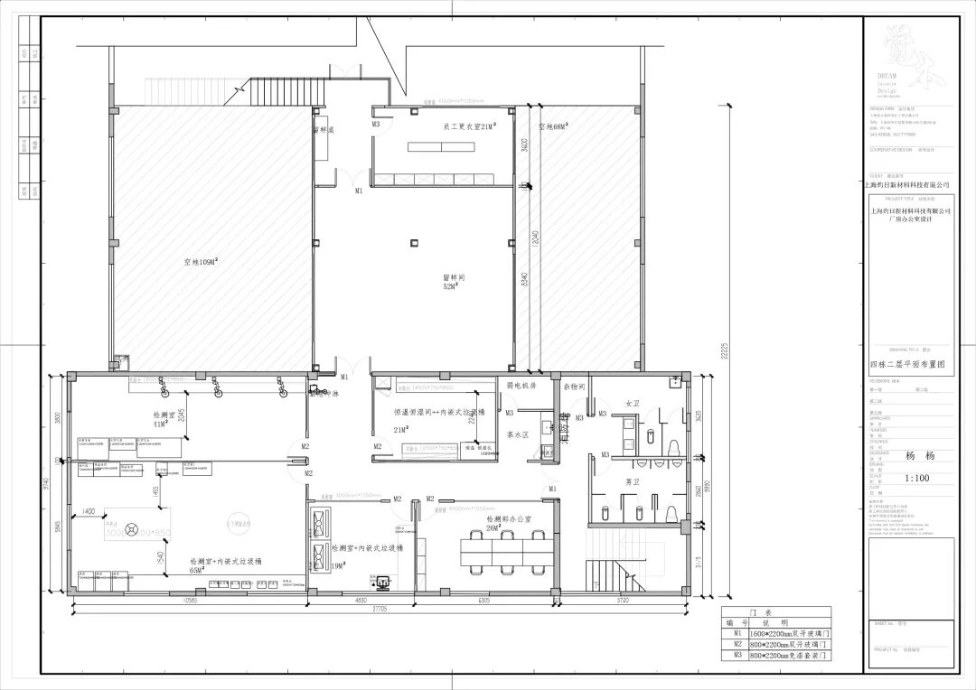
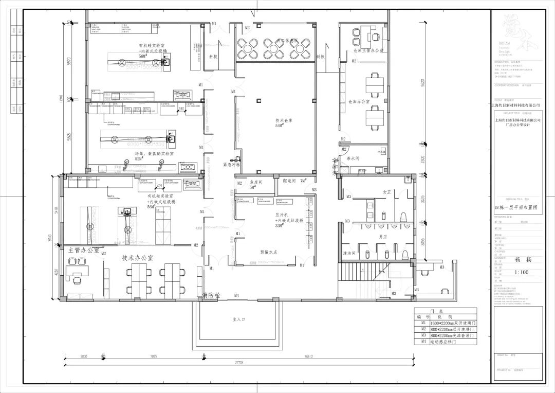
A栋主要以实验室、检测室为主样品间留样间等技术空间,前区厂房为技术空间,后区厂房主要为生产车间。


A栋平面布置图
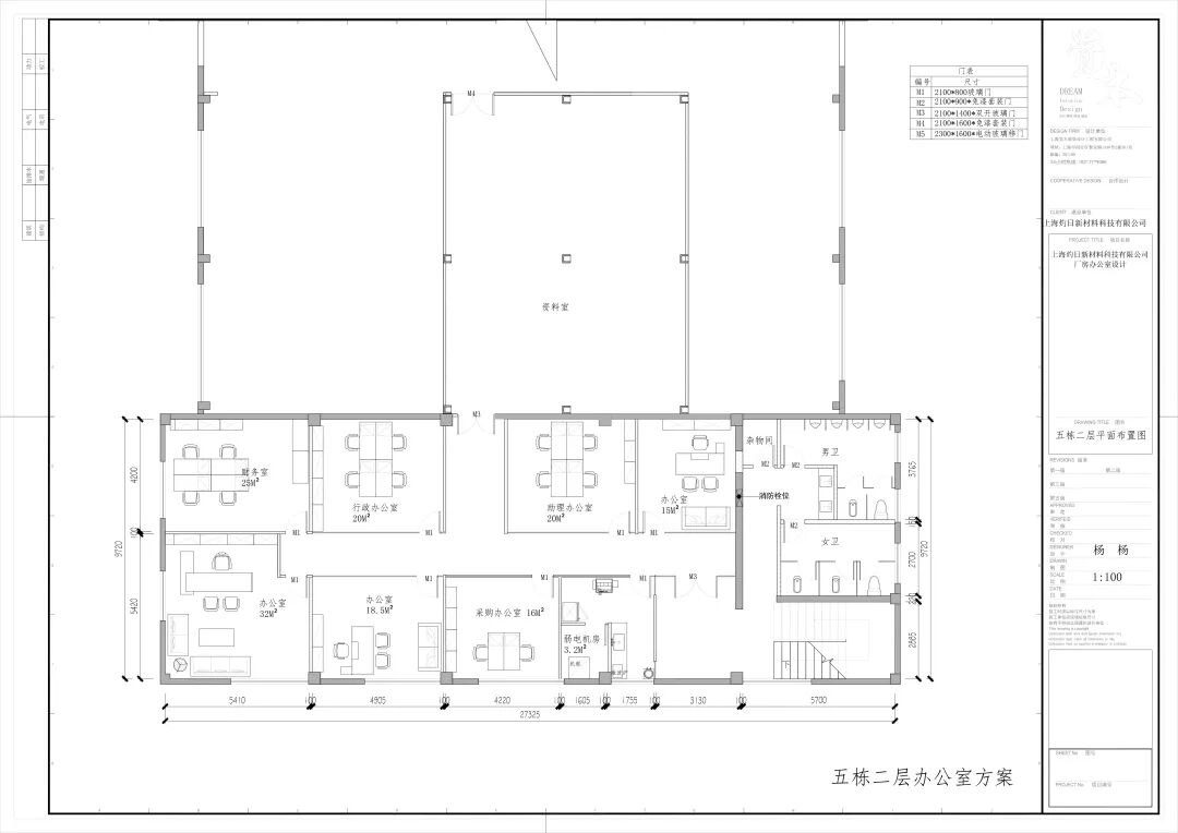
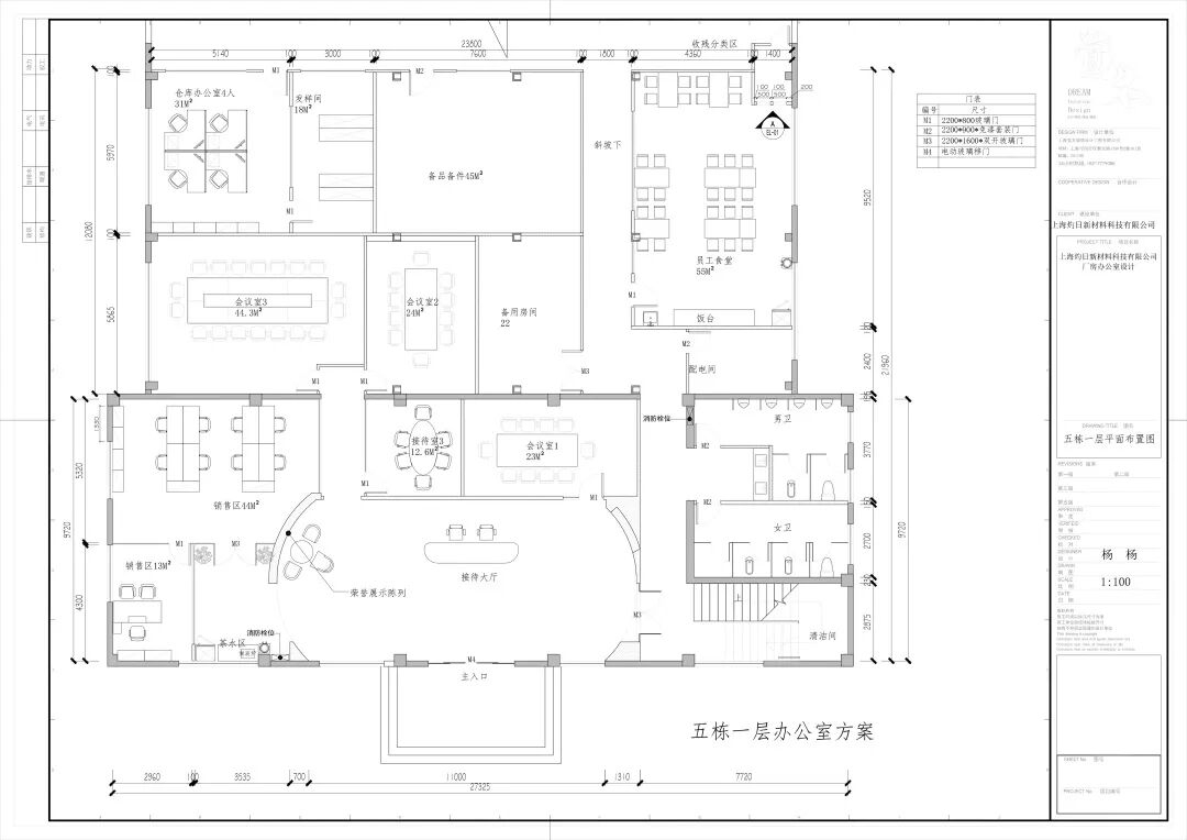
B栋的一层前区主要以前台接待、会议室接待、销售办公室、备用仓库、员工食堂、为主,厂房后区为车间,主要以成品仓库为主,用于平时出入货物储藏等,二层为员工办公空间。


B栋平面布置图
ZRXCL厂房的改造似一场微创手术,通过精准的设计诊断与最细微的调整,将厂房延伸功能合理融入办公及实验室其中,并探讨了闲置资源在面对未来企业发展时的最大可能性。

项目介绍
Project introduction
2
01
大厅
白色大理石花纹,与圆形内陷天花板相结合,灰蓝色与乳白色相结合的条纹设计,具有雅致的纹理感,像是波纹起起伏伏,营造清新理性的初始印象。
前台与背景墙均采用白色,通透大方,背景墙上有蓝色曲线图案,像是河流,浩浩汤汤,自有胸怀与气魄。

02
实验室
实验室装修是一项系统性工程,设计的重点在通风系统、气体管路系统、控制系统以及排水系统。觉木在这方面有着非常丰富经验与见解,精通于各类实验室的整体设计与装修。
本案中的工作台我们采用了全钢定制底柜,实芯理化板台面,简约的配色,让原本冷冰冰的实验室变得更为生动有活力。地面采用一体透心PVC地胶,具有较强的耐酸碱性,不易燃。顶部的通风系统使用PP风管,配合变频风机技术,让室内换气能够达到国家标准。框架结构的全钢通风柜,铰链式配重,有着较强的密封性能,可以保护我们实验室工作人员的安全。


03
办公室
银灰色编织地面设计,内敛端庄,提升空间气质。墙壁选用饱和度低的灰蓝色与简洁的乳白色撞色,新潮有趣,却又和谐统一,有利于激发员工的创造性思维。

靠窗摆放了茶水柜,展现了公司的人文关怀,并能在其员工休息时给予放松愉悦的环境。
办公桌椅选择了配套的白色与黑色,墙壁上则悬挂了绿色系,紫色系与黄色系的几何元素装饰画,打破了刻板严谨的原始办公风格,更有一盏盏小灯悬挂其上,精致可爱。

04
商讨室
总有一处空间可以供人们交流研讨,横纹磨砂玻璃推拉门隔开了外界,打造出一个静谧灵性的环境。白色组合桌椅有着流畅有力的支架,白色挂橱上摆放了清新绿植,使得整个空间生机勃勃。

05
会议室
会议室的红色面板墙引人注目,更能吸引开会者的注意力,使之精神集中,提高工作研讨效率,白色桌椅则在会议室空间里提供稳健的力量支点,提高团队凝聚力。

06
办公室
办公室采用灰黑色调,大气内敛。皮质沙发与矮茶几提供舒适度的同时,更能给人亲切质感,拉进交谈者之间都距离,宾至如归。
办公桌别出心裁地采用了黑色桌面与咖色纹理结合,自带沉稳质感。办公桌后则是金属色调的橱柜,格子的设计也并不是千篇一律,高矮不一,又充满生气。

城市旧工业区是城市记忆的一部分,而随着人类社会的不断发展,迫切需要一些方法和手段对其进行规划改造以满足人类新的需求,ZR厂房改造既尊重旧建筑的“个性”,将其保留下来,又围绕本身做出独特的设计。
对于旧空间的改造,觉木一直秉承的观点是“尊重和传承”,并一直坚持着从一个核心策略开始,通过“策略+设计”的一体化的工作方式来达到项目的商业成功。
工业区改造应当从实际条件出发,借鉴既有模式明确改造的目的和类型,把握好变与不变的平衡,处理好历史和现实的矛盾,生态和发展的矛盾。正如建筑大师安藤忠雄所说,“只有新旧并存的城市才是真正意义上的城市,过去与现代交融,才能看到精彩的未来。”
项目名称:上海ZRXCL
项目地址:上海松江区小昆山开放区
项目面积:厂房面积近10000平米,办公面积2000平米左右
设 计:DREAM DESIGN(李杨杨)

联系人P.I.C:Andy Zhao
手机PH:18217779088
邮箱EM:VIP@021dream.com
地址AD:上海市闵行区黎安路1298号2幢301室
公众号:觉木公装

 
                        
 
                
