
上海觉木装饰设计工程有限公司
一个以匠心、用匠人、造匠品的室内设计平台
艺术·人文·自然
Art/Humanity/Nature

此次新冠疫情将人们长的时间被关在一个“钢筋混凝土的牢笼”里,也使得空间设计师和人们对住房有了新的思考。

实际上,现代人类有90%的时间都生活在建筑空间里,人们意识到自然通风与自然采光的重要性,希望建筑能够融入自然,与自然相通,室内空间能够灵活可变,建筑空间能够主动感知主动调节,有温度的满足多元化需求。
后疫情时代,觉木选择为设计营造一种原始的美感。
经久耐用的设计

家居设计,是设计师对居住者梦想的达成与提升,是设计师将自己的人生阅历、生活阅历反馈给居住者,与居住者的人生故事、关于外在世界的内心观照融为一体。

觉木探索木材、原始石材等既天然又经久耐用的材料,以便室内设计长期使用。利用传统的、自然纯朴的手段,打造更加安全舒适的环境,同时结合新风系统等设备的辅助进行综合设计,被动优先、主动优化、综合平衡。
自然及植物色彩

绿植的融入不仅仅是一种生活的意趣,也代表着人们对可持续性的关注和源于自然的时尚感。也同时启发了对室内环境的品质打造有了更深层次的思考,功能化+生活化相得益彰,为员工提供真正绿色环保与健康舒适相得益彰的室内空间。
灵活可变的空间

室内空间格局很重要的一点是要让空间灵活可变,能够根据人员需求的变化而调整。追求阳光、空气、风景能自由畅快流动,注入层次感和自然感。
办公空间设计摆设从简,在平静且克制的基调中,创造空间融合及视觉张力。结合办公、洽谈、生活等商务功能的室内空间,让办公设计概念更上一层。
传统文化的融入

古人敬畏自然,追求天人合一。空间则可以与环境、与文化进行着对话,觉木公装通过环保企业办公空间的设计,匠心独运,融入了屏风、水墨画、茶室等元素,创造了一个宜人的办公空间,达到人与空间的和谐共鸣,这就是天人合一的东方意境。

JUE MU GONG ZHUANG
此次疫情,正迫使空间设计反思对“健康”的诉求,重新审视城市空间的“健康性”,完善城市的“免疫力系统”。重新联系大自然。

未来的房屋将从投资属性向使用属性转型,整个建筑市场将从增量向存量转型,从数量向质量转型。而办公设计的需求也将会从满足传统观念的所谓的高大上向真正的精致化、舒适化、快捷化转型,高品质的客户会更加关注环保、关注可持续、关注生态。
觉木将空间当作一个生物体:理想的空间状态应该是一个主动感知,并且能够主动调节的,结合室内外环境的变化、人员的变化、需求的变化等给使用者带来健康舒适、节能环保的空间。
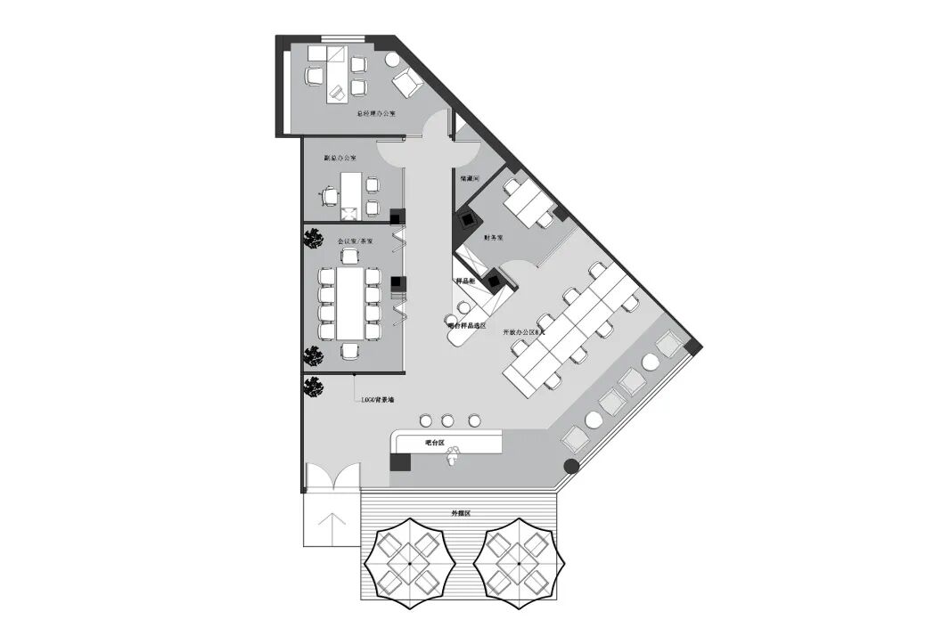
项目名称:KRLQ环保科技
项目地址:上海嘉定雅丹园
项目面积:130平方
设计时间:2021.03
实施团队:觉木公装
设计团队:杨杨

联系人P.I.C:Andy Zhao
手机PH:18217779088
邮箱EM:VIP@021dream.com
地址AD:上海市闵行区黎安路1298号2幢301室
公众号:觉木公装

