
上海觉木装饰设计工程有限公司
一个以匠心、用匠人、造匠品的室内设计平台
艺术·人文·自然
Art/Humanity/Nature

“音乐与设计的世界有着共同之处,都是在追求技巧成熟之前,去模仿新的东西,能带给感官新鲜刺激的东西,所有的表现领域就是这样发展到今天的。”日本著名设计师原研哉这样在随笔《请偷走海报》中直抒胸臆。

歌者与设计师都是“表演的人”。这或许就是觉木公装倾注心血打造唱片公司办公设计空间的原因:将音乐与设计结合,去诠释更美妙和谐的存在。
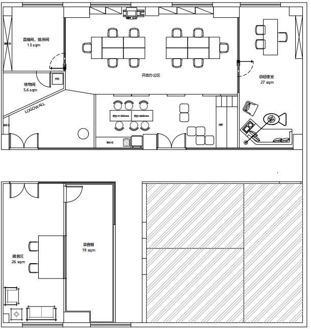
LOBBY
前厅

觉木公装选择以前厅为主轴,运用放射型格局整并各区域,从而营造出一个宽敞且自由私密兼具的效能空间。在风格形塑部分元素协调统一,藉由大面积铺色、细格隔断、百叶窗彼此整合动线,并搭配童趣满满的小球墙与白色装饰,使办公区域能稳定理性基调之余,同时彰显室内感性温度。
OFFICE AREA
办公区

办公区采取了开放式的设计,不仅能在白天最大程度地引入自然光,还助于促进员工和本地艺人之间的交流和创作。办公室作为以一种平面的公司结构,能够巧妙地折射出工作区的合作性文化,一个生动,友好而舒适的办公环境,通常能契合年轻人的活力,提升办公效率。
Pantry Area
茶水区


办公室的各个空间可从不同的地板饰面划分出来,而茶水区则采用了浅木色地板来带出温暖、家居的气氛。茶水区内设置了沙发与软椅两种形式,更加温暖舒适,富有人情味,整个区域更像是客厅的氛围。配有餐具柜、吧台、绿植和一块提拉讨论板,这里便成为了头脑风暴的绝佳场所。同时能让员工们远离工作区域,出来透透气。
On-Air Studio
直播室

直播间的天花板灯饰都是音符的形状,勾着粉蓝色的边,令人神清气爽。整个直播间小巧精致,符合空间功能诉求,且有着音乐存在的痕迹。这个属性策略的运用充分向人们宣誓了一个不争的真理:这里是一个音乐的专属空间。
Tuning Chamber
调音室

为了塑造出一个满足音乐公司特殊要求的工作场所,觉木设计从一开始就把使用者的感受放在第一位,调音室既可以办公,又能够进行专业创作。天花板沿用前厅LOGO,采用深蓝色营造出星空感,如梦似幻。当然,统一符号的另一个好处就是,它可以让空间内部的联系更为紧密,虽然会有多个部门同时办公,但看起来更像一个有机的整体。
Manager's Office
经理室


经理室作为访客接待及正式的工作间,在色彩和材质的选择上,觉木公装也花足了心思,皮质转椅的运用与金属灯饰完美邂逅,凸显了空间的质感;明亮与厚重的颜色巧妙搭配,再结合柔美的光影效果,又巧妙的塑造了一个时尚的空间氛围,充满艺术气息, 令人啧啧称奇。

设计不仅是创造出令人惊叹的建筑,最重要的是它营造了人们得以活动的伟大空间。
觉木公装以音乐为标签诠释设计,让品牌与文化自由融合,从而构建了一个身未动却心阅宇宙的灵动空间,希望我们能感同身受。
项目名称:鲸笙唱片
项目地址:上海嘉定区菊园科创大厦
项目面积:300平
设计时间:2021.06
实施团队:觉木公装
设计团队:王腾

联系人P.I.C:Andy Zhao
手机PH:18217779088
邮箱EM:VIP@021dream.com
地址AD:上海市闵行区黎安路1298号2幢301室
公众号:觉木公装
-END-

长按关注觉木公装
400-098-1588
www.dream-sh.com

