
上海觉木装饰设计工程有限公司
一个以匠心、用匠人、造匠品的室内设计平台
艺术·人文·自然
Art/Humanity/Nature

国人喜食。
“民以食为天”不仅是一句千古流传的名句,更蕴含了中国人对美食之追求与着迷;热腾腾的羊肉火锅不仅为“打工人”们带来味觉的放松,更为烦劳一天的疲惫带去精神慰藉。

向下滑动查看更多
火锅江湖竞争激烈,为求胜出,各路高手使尽了各种奇招。而觉木设计的这家羊肉火锅餐厅,不走寻常路,则是位深藏不露的“隐世高手”,纯粹自然。
你想要的火锅仪式感和空间设计感,这里从不缺。

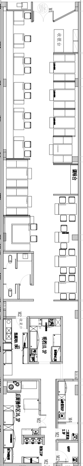
门头
空间外立面以框景手法,将餐厅内不同空间形成的景象定格,过往路人与室内产生交互的同时,也同时打造一番热闹景象。

收银区
墙面采取石材与金属材质相呼应,二种材质的碰撞将硬朗与光泽像糅和,还原生活之本真趣味。一种源自本心的自在与释然便油然而生。
空间中运用大量的盆景与瓷器,自由与健康展现得淋漓尽致,生机盎然,犹如模拟了一个原生态的食材供应厂,散发出独特的魅力。

卡座区
选择了用灯光跟玻璃形成的渐变退晕的特殊光影效果,充分利用了室内设计的优势,与充满食欲的画面相结合,虚实对比、渐变消失,把空间的光与影表现的淋漓尽致,与火锅带给人的火辣温暖氛围相契合,从而形成鲜明的超级符合,强化客人记忆的同时,又带来全新的视觉体验。

半截隔断则围合成若干个相对私密的空间,使整体空间显得更加丰富和热情,避免沉闷的同时,让隔断具有了非常鲜明的视觉冲击力和可识别性,成为助力餐厅营销的重要手段。
卡座区所用原色差别不大,原木元素占据空间大部分面积,增添了厚重底蕴及质朴之感,营造出古典的中国美,展现了火锅店一点难得的古今结合的禅意韵味。

明档区
开放式明档配菜,呈现鲜活的菜品,食材当天现买现切,增进后厨与客人之间的距离,打造“所见即所得”的用户体验,建立与客户互动链接的同时,增加客户对品牌的信任度。使用餐环境更有氛围,顾客也吃得更安心、更放心。

卫生间
一盆火红的小枫盆栽指引着卫生间,一探一退的空间设计在视觉上延展了空间,金属面的洗手台配合着纯黑色洗手池,营造了私密感,更加营造出人内敛高级的氛围。

火锅蕴含着着中国人历久弥新的文化底蕴,在传承的同时结合当代年轻人的生活方式进行产品迭代,不论是纯粹质朴的用餐环境,还是原切原味的优质肉源,都在以一种无限接近自然的方式,唤醒着都市人对于自然最纯粹的记忆!
项目名称:羊闹闹涮肉
项目地址:上海昌平路
项目面积:250平
设计时间:2021.04
实施团队:觉木公装
设计团队:杨杨
联系人P.I.C:Andy Zhao
手机PH:18217779088
邮箱EM:VIP@021dream.com
地址AD:上海市闵行区黎安路1298号2幢301室
公众号:觉木公装

 
                        
 
                
